Top.Mail.Ru

Рублевское шоссе, д. 30, к. 1

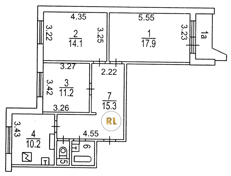
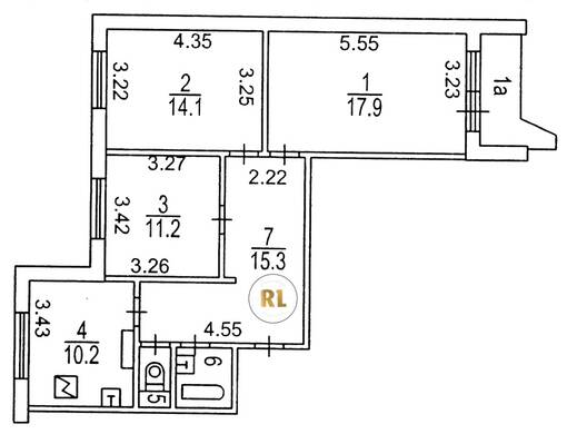
База каталог, Кол-во подъездов: 2, Отсутствует, П-44, Москва, Крылатское, Площадь парковки: 572, Пассажирский лифт: 2, От метро: 990, Западный, да, Наименьшее кол-во этажей: 17, Наибольшее кол-во этажей: 17, Молодёжная, Кол-во помещений: 131, Кол-во нежилых помещений: 3, Год ввода в эксплуатацию: 1986, 3-комн, Кол-во жилых помещений: 128, Не присвоен, дом 30, корпус 1, нет, да, да, да, да, да, Отсутствует, Грузовых лифтов: 2, Год постройки: 1985, Рублевское шоссе, 37.420338, 55.747226
Свяжитесь со мной на счет цены
10 дн.
T55S747226L37S420338T

На карте


Условия сделки

Источник


Старт продаж

Возможно заинтересует