Top.Mail.Ru

Перовская ул., д. 33, к. 1

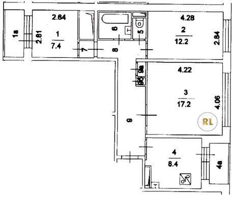
База каталог, Кол-во подъездов: 5, П-30, Москва, Перово, Пассажирский лифт: 10, От метро: 830, Восточный, да, Наименьшее кол-во этажей: 12, Наибольшее кол-во этажей: 12, Перово, Кол-во помещений: 210, Кол-во нежилых помещений: 5, Год ввода в эксплуатацию: 1987, 3-комн, Кол-во жилых помещений: 205, дом 33, корпус 1, нет, да, да, да, да, да, Грузовых лифтов: 0, Год постройки: 1987, Перовская улица, 37.775856, 55.747485
Свяжитесь со мной на счет цены
10 дн.
T55S747485L37S775856T

На карте


Условия сделки

Источник


Старт продаж

Возможно заинтересует