Top.Mail.Ru

Свободный проспект, д. 37, к. 2

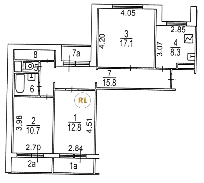
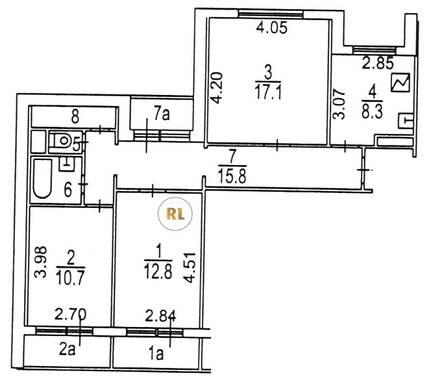
База каталог, Кол-во подъездов: 3, П-55, Москва, Новогиреево, Площадь парковки: 2364, Пассажирский лифт: 6, От метро: 410, Восточный, да, Наименьшее кол-во этажей: 12, Наибольшее кол-во этажей: 12, Новогиреево, Кол-во помещений: 138, Кол-во нежилых помещений: 6, Год ввода в эксплуатацию: 1983, 3-комн, Кол-во жилых помещений: 132, Не присвоен, дом 37, корпус 2, да, да, да, да, да, да, Имеется, Грузовых лифтов: 0, Год постройки: 1983, Свободный проспект, 37.817313, 55.747844
Свяжитесь со мной на счет цены
10 дн.
T55S747844L37S817313T

На карте


Условия сделки

Источник


Старт продаж

Возможно заинтересует