Top.Mail.Ru

Рублевское шоссе, д. 34, к. 1

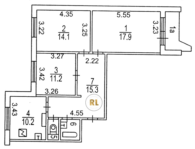
База каталог, Кол-во подъездов: 5, Имеется, П-44, Москва, Крылатское, Площадь парковки: 736, Пассажирский лифт: 5, От метро: 1060, Западный, да, Наименьшее кол-во этажей: 17, Наибольшее кол-во этажей: 17, Крылатское, Кол-во помещений: 324, Кол-во нежилых помещений: 4, Год ввода в эксплуатацию: 1985, 3-комн, Кол-во жилых помещений: 320, Не присвоен, дом 34, корпус 1, нет, да, да, да, да, да, Имеется, Грузовых лифтов: 5, Год постройки: 1985, Рублевское шоссе, 37.417194, 55.748382
Свяжитесь со мной на счет цены
10 дн.
T55S748382L37S417194T

На карте


Условия сделки

Источник


Старт продаж

Возможно заинтересует