Top.Mail.Ru

Рублевское шоссе, д. 30, к. 2

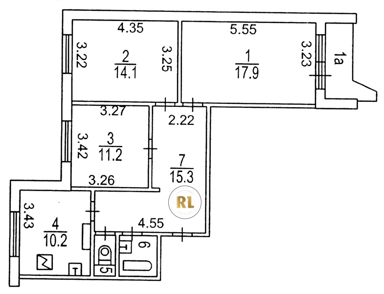
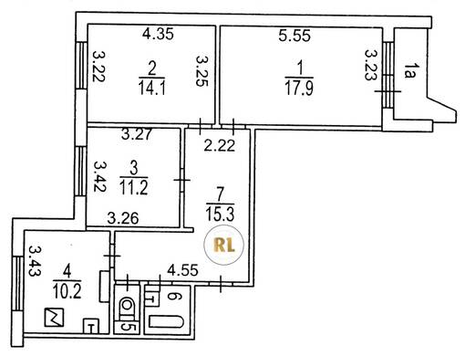
База каталог, Кол-во подъездов: 7, Имеется, П-44, Москва, Крылатское, Площадь парковки: 470, Пассажирский лифт: 7, От метро: 1140, Западный, да, Наименьшее кол-во этажей: 17, Наибольшее кол-во этажей: 17, Молодёжная, Кол-во помещений: 472, Кол-во нежилых помещений: 0, Год ввода в эксплуатацию: 1984, 3-комн, Кол-во жилых помещений: 472, Не присвоен, дом 30, корпус 2, нет, да, да, да, да, нет, Имеется, Грузовых лифтов: 7, Год постройки: 1985, Рублевское шоссе, 37.420689, 55.748468
Свяжитесь со мной на счет цены
10 дн.
T55S748468L37S420689T

На карте


Условия сделки

Источник


Старт продаж

Возможно заинтересует