Top.Mail.Ru

Рублевское шоссе, д. 38, к. 1

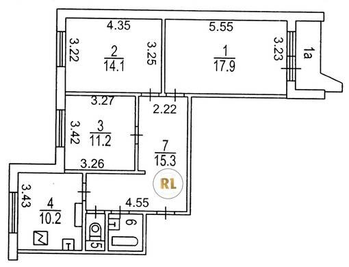
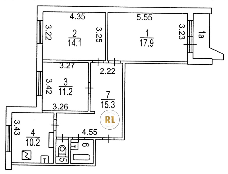
База каталог, Кол-во подъездов: 2, Отсутствует, П-44, Москва, Крылатское, Площадь парковки: 0, Пассажирский лифт: 2, От метро: 870, Западный, нет, Наименьшее кол-во этажей: 17, Наибольшее кол-во этажей: 17, Крылатское, Кол-во помещений: 132, Кол-во нежилых помещений: 4, Год ввода в эксплуатацию: 1985, 3-комн, Кол-во жилых помещений: 128, Не присвоен, дом 38, корпус 1, нет, да, да, да, да, да, Отсутствует, Грузовых лифтов: 2, Год постройки: 1985, Рублевское шоссе, 37.414652, 55.749886
Свяжитесь со мной на счет цены
10 дн.
T55S749886L37S414652T

На карте


Условия сделки

Источник


Старт продаж

Возможно заинтересует