Top.Mail.Ru

Волочаевская ул., д. 20, к. 3

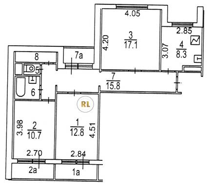
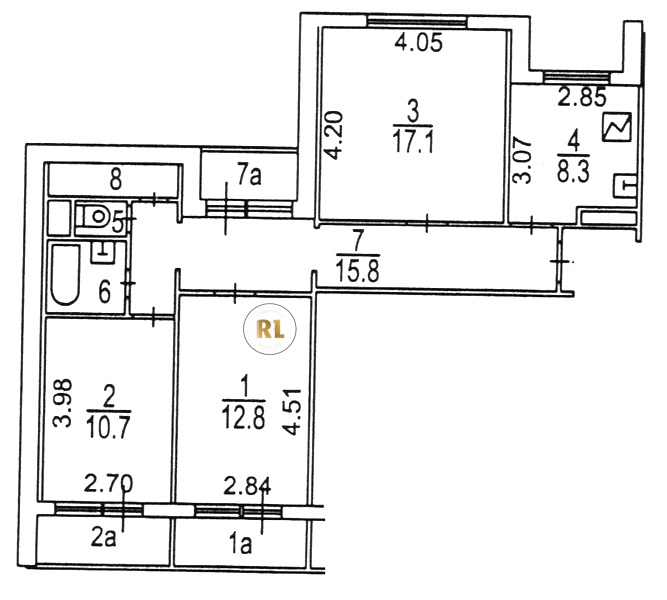
База каталог, Кол-во подъездов: 3, Имеется, П-55, Москва, Лефортово, Площадь парковки: 0, Пассажирский лифт: 6, От метро: 1130, Юго-Восточный, нет, Наименьшее кол-во этажей: 9, Наибольшее кол-во этажей: 9, Площадь Ильича, Кол-во помещений: 87, Кол-во нежилых помещений: 0, Год ввода в эксплуатацию: 1982, 3-комн, Кол-во жилых помещений: 87, А, дом 20, корпус 3, нет, да, да, да, да, нет, Имеется, Грузовых лифтов: 0, Год постройки: 1982, Волочаевская улица, 37.677292, 55.753337
Свяжитесь со мной на счет цены
10 дн.
T55S753337L37S677292T

На карте


Условия сделки

Источник


Старт продаж

Возможно заинтересует