Top.Mail.Ru

Красноказарменная ул., д. 19

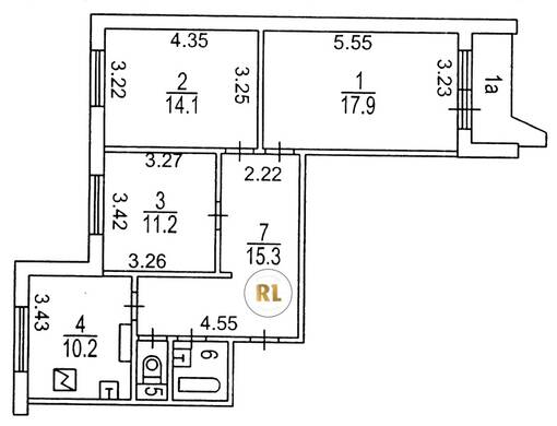
База каталог, Кол-во помещений: 138, Имеется, П-44-1/17, Москва, Лефортово, Площадь парковки: 0, Пассажирский лифт: 4, От метро: 460, Юго-Восточный, нет, Наименьшее кол-во этажей: 9, Наибольшее кол-во этажей: 9, Авиамоторная, Кол-во подъездов: 4, Год ввода в эксплуатацию: 1961, Кол-во нежилых помещений: 0, 3-комн, Кол-во жилых помещений: 138, А, дом 19, да, да, да, да, да, да, Грузовых лифтов: 0, Год постройки: 1961, Красноказарменная улица, 37.710090, 55.753995
Свяжитесь со мной на счет цены
10 дн.
T55S753995L37S710090T

На карте


Условия сделки

Источник


Старт продаж

Возможно заинтересует