Top.Mail.Ru

Новогиреевская ул., д. 31/45

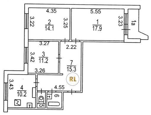
База каталог, Кол-во подъездов: 7, Отсутствует, П-44, Москва, Перово, Площадь парковки: 0, Пассажирский лифт: 7, От метро: 770, Восточный, нет, Наименьшее кол-во этажей: 1, Наибольшее кол-во этажей: 17, Перово, Кол-во помещений: 468, Кол-во нежилых помещений: 5, Год ввода в эксплуатацию: 1990, 3-комн, Кол-во жилых помещений: 463, А, дом 31/45, нет, да, да, да, да, да, Отсутствует, Грузовых лифтов: 7, Год постройки: 1990, Новогиреевская улица, 37.798502, 55.754360
Свяжитесь со мной на счет цены
10 дн.
T55S754360L37S798502T

На карте


Условия сделки

Источник


Старт продаж

Возможно заинтересует