Top.Mail.Ru

Осенний бульвар, д. 8, к. 1

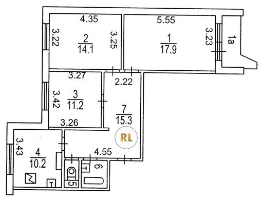
База каталог, Кол-во подъездов: 2, Имеется, П-44, Москва, Крылатское, Площадь парковки: 583, Пассажирский лифт: 2, От метро: 126, Западный, да, Наименьшее кол-во этажей: 17, Наибольшее кол-во этажей: 17, Крылатское, Кол-во помещений: 132, Кол-во нежилых помещений: 4, Год ввода в эксплуатацию: 1984, 3-комн, Кол-во жилых помещений: 128, Не присвоен, дом 8, корпус 1, да, да, да, да, да, да, Отсутствует, Грузовых лифтов: 2, Год постройки: 1984, Осенний бульвар, 37.409460, 55.755642
Свяжитесь со мной на счет цены
10 дн.
T55S755642L37S409460T

На карте


Условия сделки

Источник


Старт продаж

Возможно заинтересует