Top.Mail.Ru

Осенний бульвар, д. 8, к. 2

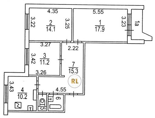
База каталог, Кол-во подъездов: 7, Отсутствует, П-44, Москва, Крылатское, Площадь парковки: 762, Пассажирский лифт: 7, От метро: 178, Западный, да, Наименьшее кол-во этажей: 17, Наибольшее кол-во этажей: 17, Крылатское, Кол-во помещений: 476, Кол-во нежилых помещений: 4, Год ввода в эксплуатацию: 1985, 3-комн, Кол-во жилых помещений: 472, Не присвоен, дом 8, корпус 2, да, да, да, да, да, да, Имеется, Грузовых лифтов: 7, Год постройки: 1985, Осенний бульвар, 37.410915, 55.755687
Свяжитесь со мной на счет цены
10 дн.
T55S755687L37S410915T

На карте


Условия сделки

Источник


Старт продаж

Возможно заинтересует