Top.Mail.Ru

улица Лапина, д. 3

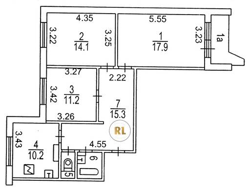
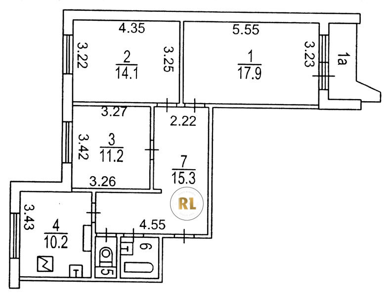
База каталог, Кол-во помещений: 30, Имеется, П-44-1/17, Москва, Лефортово, Площадь парковки: 0, Пассажирский лифт: 2, От метро: 530, Юго-Восточный, нет, Наименьшее кол-во этажей: 6, Наибольшее кол-во этажей: 6, Авиамоторная, Кол-во подъездов: 2, Год ввода в эксплуатацию: 1960, Кол-во нежилых помещений: 0, 3-комн, Кол-во жилых помещений: 30, В+, дом 3, да, да, да, да, да, да, Грузовых лифтов: 0, Год постройки: 1960, улица Лапина, 37.712704, 55.756391
21 700 000 Р
10 дн.
T55S756391L37S712704T
+

На карте


Условия сделки

Источник


Старт продаж