Top.Mail.Ru

Осенний бульвар, д. 10, к. 1

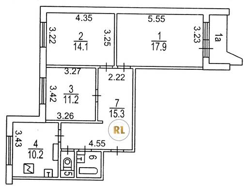
База каталог, Кол-во помещений: 541, Имеется, П-44, Москва, Крылатское, Площадь парковки: 0, Пассажирский лифт: 8, От метро: 233, Западный, нет, Наименьшее кол-во этажей: 17, Наибольшее кол-во этажей: 17, Крылатское, Кол-во подъездов: 8, Год ввода в эксплуатацию: 1984, Кол-во нежилых помещений: 13, 3-комн, Кол-во жилых помещений: 528, дом 10, корпус 1, да, да, да, да, да, да, Имеется, Грузовых лифтов: 8, Год постройки: 1984, Осенний бульвар, 37.408993, 55.756903
Свяжитесь со мной на счет цены
10 дн.
T55S756903L37S408993T

На карте


Условия сделки

Источник


Старт продаж

Возможно заинтересует