Top.Mail.Ru

Свободный проспект, д. 21/2

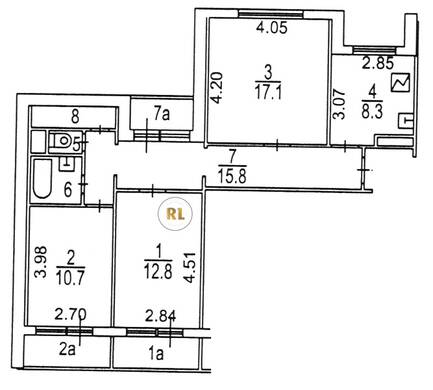
База каталог, Кол-во подъездов: 5, П-55, Москва, Новогиреево, Площадь парковки: 336, Пассажирский лифт: 5, От метро: 770, Восточный, да, Наименьшее кол-во этажей: 12, Наибольшее кол-во этажей: 12, Новогиреево, Кол-во помещений: 185, Кол-во нежилых помещений: 9, Год ввода в эксплуатацию: 1985, 3-комн, Кол-во жилых помещений: 176, Не присвоен, дом 21/2, нет, да, да, да, да, да, Имеется, Грузовых лифтов: 5, Год постройки: 1985, Свободный проспект, 37.820160, 55.757916
21 750 000 Р
10 дн.
T55S757916L37S820160T
+

На карте


Условия сделки

Источник


Старт продаж

Возможно заинтересует