Top.Mail.Ru

улица Металлургов, д. 13, к. 1

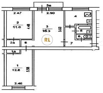
База каталог, Кол-во подъездов: 4, I-511, Москва, Перово, Пассажирский лифт: 0, От метро: 910, Восточный, да, Наименьшее кол-во этажей: 5, Наибольшее кол-во этажей: 5, Перово, Кол-во помещений: 59, Кол-во нежилых помещений: 2, Год ввода в эксплуатацию: 1959, 3-комн, Кол-во жилых помещений: 57, дом 13, корпус 1, нет, да, да, да, да, да, Грузовых лифтов: 0, Год постройки: 1959, улица Металлургов, 37.783267, 55.757972
Свяжитесь со мной на счет цены
10 дн.
T55S757972L37S783267T

На карте


Условия сделки

Источник


Старт продаж

Возможно заинтересует