Top.Mail.Ru

Нагорная ул., д. 20, к. 3

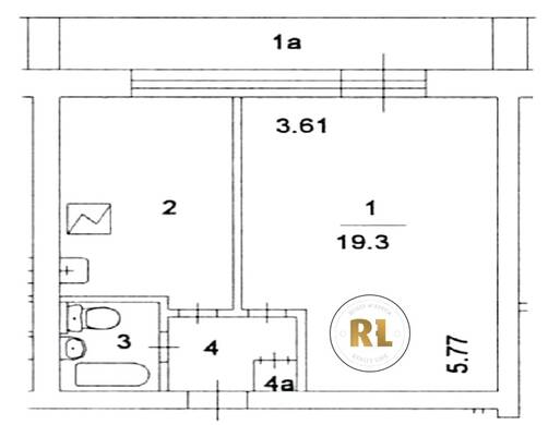
База каталог, Кол-во подъездов: 1, нет, II-68, Москва, Котловка, Площадь парковки: 0, Нет, Пассажирский лифт: 2, От метро: 1290, Юго-Западный, нет, Наименьшее кол-во этажей: 12, Наибольшее кол-во этажей: 12, Нагорная, Кол-во помещений: 84, Кол-во нежилых помещений: 0, Год ввода в эксплуатацию: 1974, 1-комн, Кол-во жилых помещений: 84, E, Нет, дом 20, корпус 3, нет, да, да, да, да, нет, Грузовых лифтов: 0, Нет, Год постройки: 1974, Нагорная улица, 37.603765, 55.679600
Свяжитесь со мной на счет цены
10 дн.
O55S679600L37S603765O

На карте


Условия сделки

Источник


Старт продаж

Возможно заинтересует