Top.Mail.Ru

улица Металлургов, д. 13, к. 2

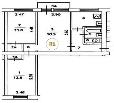
База каталог, Кол-во подъездов: 3, I-511, Москва, Перово, Пассажирский лифт: 0, От метро: 950, Восточный, да, Наименьшее кол-во этажей: 5, Наибольшее кол-во этажей: 5, Перово, Кол-во помещений: 46, Кол-во нежилых помещений: 1, Год ввода в эксплуатацию: 1960, 3-комн, Кол-во жилых помещений: 45, дом 13, корпус 2, нет, да, да, да, да, да, Грузовых лифтов: 0, Год постройки: 1960, улица Металлургов, 37.782422, 55.758448
Свяжитесь со мной на счет цены
10 дн.
T55S758448L37S782422T

На карте


Условия сделки

Источник


Старт продаж

Возможно заинтересует