Top.Mail.Ru

Осенний бульвар, д. 12, к. 11

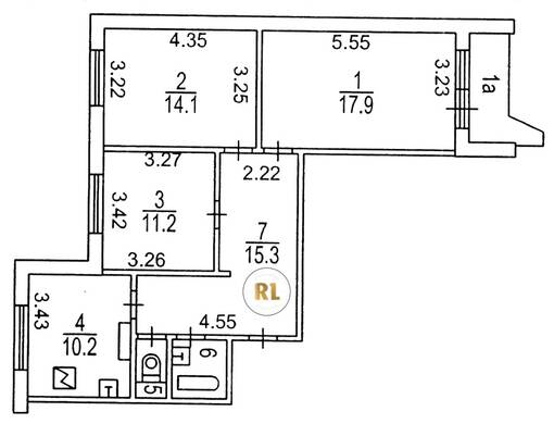
База каталог, Кол-во подъездов: 3, Отсутствует, П-44, Москва, Крылатское, Площадь парковки: 0, Пассажирский лифт: 3, От метро: 490, Западный, нет, Наименьшее кол-во этажей: 17, Наибольшее кол-во этажей: 17, Крылатское, Кол-во помещений: 203, Кол-во нежилых помещений: 1, Год ввода в эксплуатацию: 1985, 3-комн, Кол-во жилых помещений: 202, Не присвоен, дом 12, корпус 11, да, да, да, да, да, да, Отсутствует, Грузовых лифтов: 3, Год постройки: 1985, Осенний бульвар, 37.414975, 55.758463
Свяжитесь со мной на счет цены
10 дн.
T55S758463L37S414975T

На карте


Условия сделки

Источник


Старт продаж

Возможно заинтересует