Top.Mail.Ru

улица Сталеваров, д. 14, к. 5

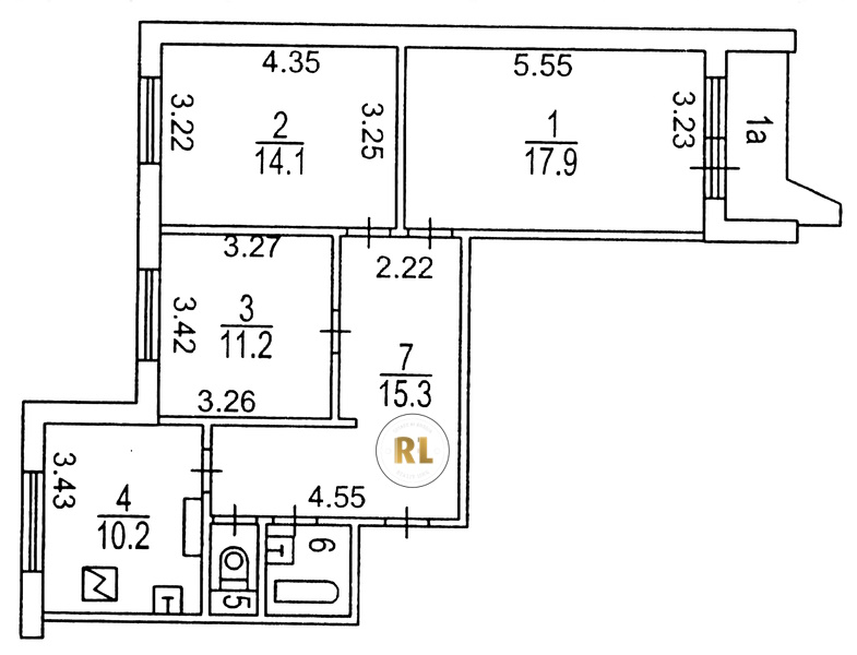
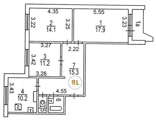
База каталог, Кол-во подъездов: 3, Отсутствует, П-44, Москва, Ивановское, Площадь парковки: 0, Пассажирский лифт: 3, От метро: 1870, Восточный, нет, Наименьшее кол-во этажей: 17, Наибольшее кол-во этажей: 17, Новогиреево, Кол-во помещений: 203, Кол-во нежилых помещений: 1, Год ввода в эксплуатацию: 2000, 3-комн, Кол-во жилых помещений: 202, Не присвоен, дом 14, корпус 5, нет, да, да, да, нет, нет, Отсутствует, Грузовых лифтов: 3, Год постройки: 2000, улица Сталеваров, 37.837570, 55.758676
Свяжитесь со мной на счет цены
10 дн.
T55S758676L37S837570T

На карте


Условия сделки

Источник


Старт продаж

Возможно заинтересует