Top.Mail.Ru

Осенний бульвар, д. 12, к. 3

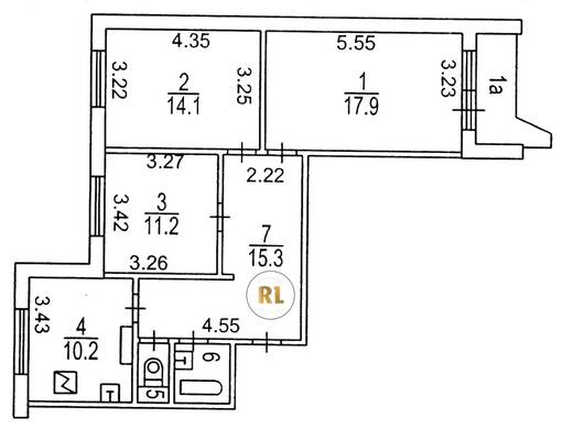
База каталог, Кол-во подъездов: 4, П-44, Москва, Крылатское, Пассажирский лифт: 4, От метро: 185, Западный, да, Наименьшее кол-во этажей: 17, Наибольшее кол-во этажей: 17, Крылатское, Кол-во помещений: 263, Кол-во нежилых помещений: 9, Год ввода в эксплуатацию: 1985, 3-комн, Кол-во жилых помещений: 254, дом 12, корпус 3, да, да, да, да, да, да, Грузовых лифтов: 4, Год постройки: 1985, Осенний бульвар, 37.410385, 55.758802
Свяжитесь со мной на счет цены
10 дн.
T55S758802L37S410385T

На карте


Условия сделки

Источник


Старт продаж

Возможно заинтересует