Top.Mail.Ru

Стрельбищенский переулок, д. 12

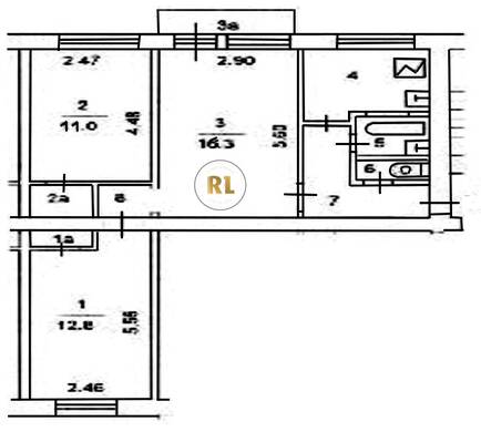
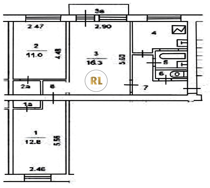
База каталог, Кол-во подъездов: 3, I-511, Москва, Пресненский, Площадь парковки: 0, Пассажирский лифт: 0, От метро: 1350, Центральный, нет, Наименьшее кол-во этажей: 1, Наибольшее кол-во этажей: 5, Шелепиха, Кол-во помещений: 65, Кол-во нежилых помещений: 5, Год ввода в эксплуатацию: 1962, 3-комн, Кол-во жилых помещений: 60, Не присвоен, дом 12, нет, да, да, да, да, нет, Имеется, Грузовых лифтов: 0, Год постройки: 1962, Стрельбищенский переулок, 37.539114, 55.759279
Свяжитесь со мной на счет цены
10 дн.
T55S759279L37S539114T

На карте


Условия сделки

Источник


Старт продаж

Возможно заинтересует