Top.Mail.Ru

Свободный проспект, д. 11, к. 5

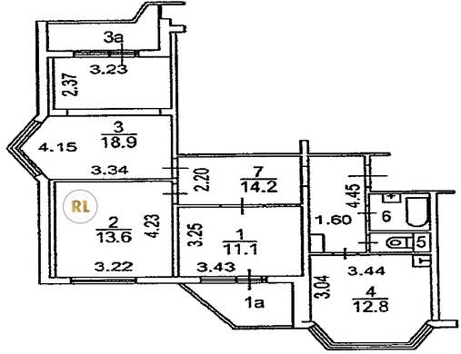
База каталог, Кол-во подъездов: 2, Имеется, П-44T, Москва, Ивановское, Площадь парковки: 0, Пассажирский лифт: 2, От метро: 1200, Восточный, нет, Наименьшее кол-во этажей: 17, Наибольшее кол-во этажей: 17, Новогиреево, Кол-во помещений: 126, Кол-во нежилых помещений: 2, Год ввода в эксплуатацию: 2002, 3-комн, Кол-во жилых помещений: 124, Не присвоен, дом 11, корпус 5, нет, да, да, да, да, нет, Имеется, Грузовых лифтов: 2, Год постройки: 2002, Свободный проспект, 37.825469, 55.760119
Свяжитесь со мной на счет цены
10 дн.
T55S760119L37S825469T

На карте


Условия сделки

Источник


Старт продаж

Возможно заинтересует