Top.Mail.Ru

Осенний бульвар, д. 15

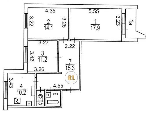
База каталог, Кол-во подъездов: 8, Отсутствует, П-44, Москва, Крылатское, Площадь парковки: 946, Пассажирский лифт: 8, От метро: 310, Западный, да, Наименьшее кол-во этажей: 16, Наибольшее кол-во этажей: 17, Крылатское, Кол-во помещений: 528, Кол-во нежилых помещений: 7, Год ввода в эксплуатацию: 1985, 3-комн, Кол-во жилых помещений: 521, Не присвоен, дом 15, да, да, да, да, да, да, Имеется, Грузовых лифтов: 8, Год постройки: 1985, Осенний бульвар, 37.406522, 55.760413
Свяжитесь со мной на счет цены
10 дн.
T55S760413L37S406522T

На карте


Условия сделки

Источник


Старт продаж

Возможно заинтересует