Top.Mail.Ru

Гаражная ул., д. 5

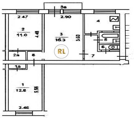
База каталог, Кол-во подъездов: 4, I-511, Москва, Соколиная Гора, Пассажирский лифт: 0, От метро: 380, Восточный, да, Наименьшее кол-во этажей: 5, Наибольшее кол-во этажей: 5, Шоссе Энтузиастов, Кол-во помещений: 81, Кол-во нежилых помещений: 1, Год ввода в эксплуатацию: 1959, 3-комн, Кол-во жилых помещений: 80, дом 5, да, да, да, да, да, да, Грузовых лифтов: 0, Год постройки: 1959, Гаражная улица, 37.743372, 55.760530
Свяжитесь со мной на счет цены
10 дн.
T55S760530L37S743372T

На карте


Условия сделки

Источник


Старт продаж

Возможно заинтересует