Top.Mail.Ru

Осенний бульвар, д. 16, к. 2

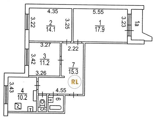
База каталог, Кол-во подъездов: 8, Отсутствует, П-44, Москва, Крылатское, Площадь парковки: 1261, Пассажирский лифт: 8, От метро: 410, Западный, да, Наименьшее кол-во этажей: 17, Наибольшее кол-во этажей: 17, Крылатское, Кол-во помещений: 541, Кол-во нежилых помещений: 2, Год ввода в эксплуатацию: 1984, 3-комн, Кол-во жилых помещений: 539, Не присвоен, дом 16, корпус 2, да, да, да, да, да, да, Имеется, Грузовых лифтов: 8, Год постройки: 1984, Осенний бульвар, 37.410969, 55.760545
Свяжитесь со мной на счет цены
10 дн.
T55S760545L37S410969T

На карте


Условия сделки

Источник


Старт продаж

Возможно заинтересует