Top.Mail.Ru

Осенний бульвар, д. 18, к. 1

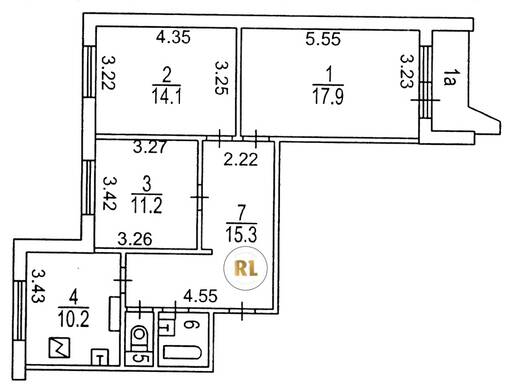
База каталог, Кол-во подъездов: 2, Отсутствует, П-44, Москва, Крылатское, Площадь парковки: 253, Пассажирский лифт: 2, От метро: 460, Западный, да, Наименьшее кол-во этажей: 17, Наибольшее кол-во этажей: 17, Крылатское, Кол-во помещений: 143, Кол-во нежилых помещений: 15, Год ввода в эксплуатацию: 1984, 3-комн, Кол-во жилых помещений: 128, Не присвоен, дом 18, корпус 1, да, да, да, да, да, да, Отсутствует, Грузовых лифтов: 2, Год постройки: 1984, Осенний бульвар, 37.408660, 55.761766
Свяжитесь со мной на счет цены
10 дн.
T55S761766L37S408660T

На карте


Условия сделки

Источник


Старт продаж

Возможно заинтересует