Top.Mail.Ru

проспект Буденного, д. 47А

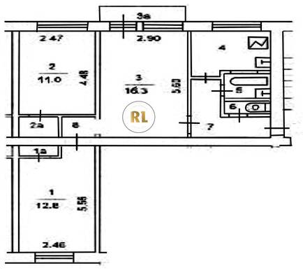
База каталог, Кол-во подъездов: 3, I-511, Москва, Соколиная Гора, Пассажирский лифт: 0, От метро: 950, Восточный, да, Наименьшее кол-во этажей: 5, Наибольшее кол-во этажей: 5, Шоссе Энтузиастов, Кол-во помещений: 61, Кол-во нежилых помещений: 1, Год ввода в эксплуатацию: 1960, 3-комн, Кол-во жилых помещений: 60, дом 47А, нет, да, да, да, да, да, Грузовых лифтов: 0, Год постройки: 1960, проспект Буденного, 37.737336, 55.762080
Свяжитесь со мной на счет цены
10 дн.
T55S762080L37S737336T

На карте


Условия сделки

Источник


Старт продаж

Возможно заинтересует