Top.Mail.Ru

Филевский бульвар, д. 35

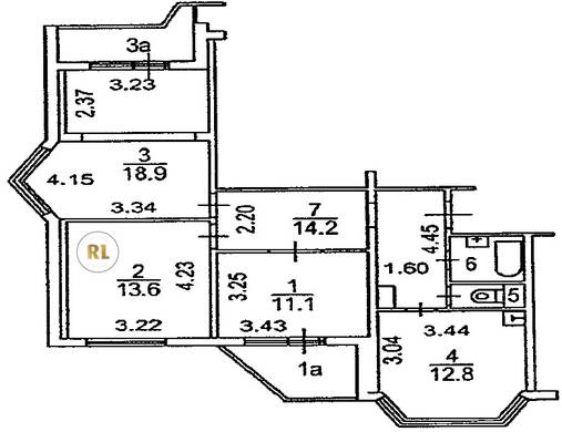
База каталог, Кол-во подъездов: 2, Отсутствует, П-44T, Москва, Филевский Парк, Площадь парковки: 0, Пассажирский лифт: 2, От метро: 3100, Западный, нет, Наименьшее кол-во этажей: 17, Наибольшее кол-во этажей: 17, Фили, Кол-во помещений: 134, Кол-во нежилых помещений: 1, Год ввода в эксплуатацию: 1999, 3-комн, Кол-во жилых помещений: 133, Не присвоен, дом 35, нет, нет, нет, нет, нет, нет, Отсутствует, Грузовых лифтов: 2, Год постройки: 1999, Филевский бульвар, 37.490820, 55.763047
Свяжитесь со мной на счет цены
10 дн.
T55S763047L37S490820T

На карте


Условия сделки

Источник


Старт продаж

Возможно заинтересует