Top.Mail.Ru

Филевский бульвар, д. 34

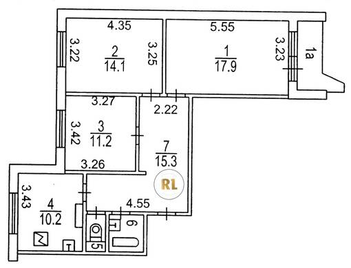
База каталог, Кол-во подъездов: 2, Отсутствует, П-44, Москва, Филевский Парк, Площадь парковки: 0, Пассажирский лифт: 2, От метро: 3100, Западный, нет, Наименьшее кол-во этажей: 17, Наибольшее кол-во этажей: 17, Фили, Кол-во помещений: 136, Кол-во нежилых помещений: 1, Год ввода в эксплуатацию: 1999, 3-комн, Кол-во жилых помещений: 135, Не присвоен, дом 34, нет, нет, нет, нет, нет, нет, Имеется, Грузовых лифтов: 2, Год постройки: 1999, Филевский бульвар, 37.491835, 55.763057
Свяжитесь со мной на счет цены
10 дн.
T55S763057L37S491835T

На карте


Условия сделки

Источник


Старт продаж

Возможно заинтересует