Top.Mail.Ru

Солдатская ул., д. 12, к. 1

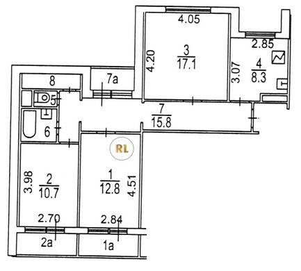
База каталог, Кол-во подъездов: 2, Имеется, П-55, Москва, Лефортово, Площадь парковки: 0, Пассажирский лифт: 4, От метро: 157, Юго-Восточный, нет, Наименьшее кол-во этажей: 14, Наибольшее кол-во этажей: 14, Лефортово, Кол-во помещений: 78, Кол-во нежилых помещений: 0, Год ввода в эксплуатацию: 1985, 3-комн, Кол-во жилых помещений: 78, E, дом 12, корпус 1, да, да, да, да, да, да, Имеется, Грузовых лифтов: 0, Год постройки: 1985, Солдатская улица, 37.704215, 55.763792
Свяжитесь со мной на счет цены
10 дн.
T55S763792L37S704215T

На карте


Условия сделки

Источник


Старт продаж

Возможно заинтересует