Top.Mail.Ru

проспект Буденного, д. 39, к. 2

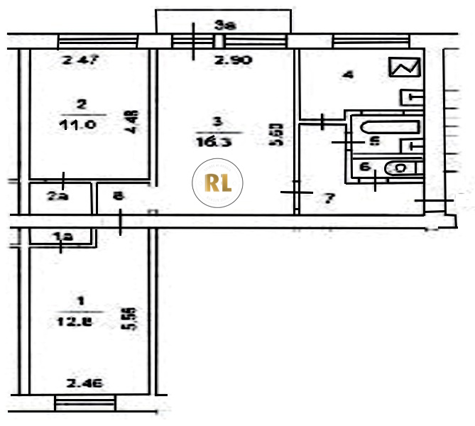
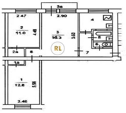
База каталог, Кол-во подъездов: 3, I-511, Москва, Соколиная Гора, Площадь парковки: 199, Пассажирский лифт: 0, От метро: 1100, Восточный, да, Наименьшее кол-во этажей: 5, Наибольшее кол-во этажей: 5, Соколиная Гора, Кол-во помещений: 61, Кол-во нежилых помещений: 1, Год ввода в эксплуатацию: 1960, 3-комн, Кол-во жилых помещений: 60, Не присвоен, дом 39, корпус 2, нет, да, да, да, да, нет, Имеется, Грузовых лифтов: 0, Год постройки: 1960, проспект Буденного, 37.735440, 55.764334
Свяжитесь со мной на счет цены
10 дн.
T55S764334L37S735440T

На карте


Условия сделки

Источник


Старт продаж

Возможно заинтересует