Top.Mail.Ru

улица Сталеваров, д. 10, к. 3

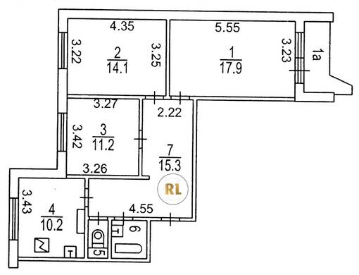
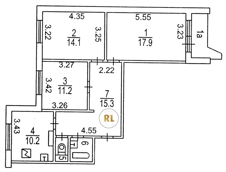
База каталог, Кол-во подъездов: 2, П-44, Москва, Ивановское, Площадь парковки: 0, Пассажирский лифт: 2, От метро: 2250, Восточный, нет, Наименьшее кол-во этажей: 14, Наибольшее кол-во этажей: 14, Новогиреево, Кол-во помещений: 224, Кол-во нежилых помещений: 113, Год ввода в эксплуатацию: 2002, 3-комн, Кол-во жилых помещений: 111, Не присвоен, дом 10, корпус 3, нет, да, да, нет, нет, нет, Отсутствует, Грузовых лифтов: 2, Год постройки: 2002, улица Сталеваров, 37.837714, 55.764394
Свяжитесь со мной на счет цены
10 дн.
T55S764394L37S837714T

На карте


Условия сделки

Источник


Старт продаж

Возможно заинтересует