Top.Mail.Ru

Свободный проспект, д. 9, к. 1

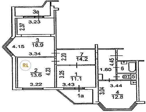
База каталог, Кол-во помещений: 144, П-44T, Москва, Ивановское, Площадь парковки: 0, Пассажирский лифт: 4, От метро: 1710, Восточный, нет, Наименьшее кол-во этажей: 9, Наибольшее кол-во этажей: 9, Новогиреево, Кол-во подъездов: 4, Год ввода в эксплуатацию: 1973, Кол-во нежилых помещений: 0, 3-комн, Кол-во жилых помещений: 144, дом 9, корпус 1, нет, да, да, да, нет, нет, Грузовых лифтов: 0, Год постройки: 1973, Свободный проспект, 37.824733, 55.765083
13 200 000 Р
10 дн.
T55S765083L37S824733T
+

На карте


Условия сделки

Источник


Старт продаж