Top.Mail.Ru

Наличная ул., д. 5

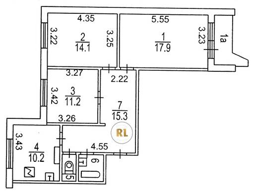
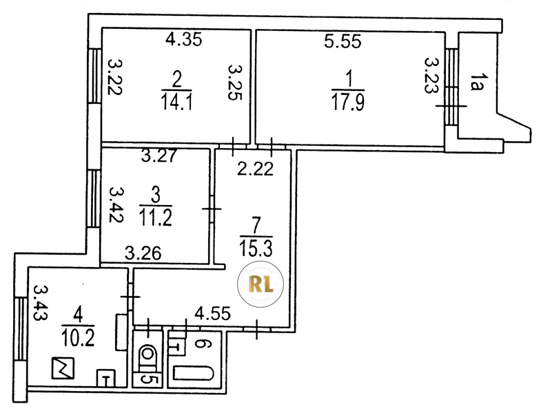
База каталог, Кол-во подъездов: 4, П-44, Москва, Лефортово, Площадь парковки: 0, Пассажирский лифт: 8, От метро: 107, Юго-Восточный, нет, Наименьшее кол-во этажей: 17, Наибольшее кол-во этажей: 17, Лефортово, Кол-во помещений: 271, Кол-во нежилых помещений: 0, Год ввода в эксплуатацию: 1988, 3-комн, Кол-во жилых помещений: 271, E, дом 5, да, да, да, да, да, да, Грузовых лифтов: 4, Год постройки: 1988, Наличная улица, 37.705149, 55.765179
Свяжитесь со мной на счет цены
10 дн.
T55S765179L37S705149T

На карте


Условия сделки

Источник


Старт продаж

Возможно заинтересует