Top.Mail.Ru

Солдатская ул., д. 3

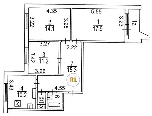
База каталог, Кол-во подъездов: 6, П-44, Москва, Лефортово, Площадь парковки: 0, Пассажирский лифт: 12, От метро: 224, Юго-Восточный, нет, Наименьшее кол-во этажей: 17, Наибольшее кол-во этажей: 17, Лефортово, Кол-во помещений: 395, Кол-во нежилых помещений: 0, Год ввода в эксплуатацию: 1988, 3-комн, Кол-во жилых помещений: 395, А, дом 3, да, да, да, да, да, да, Грузовых лифтов: 6, Год постройки: 1988, Солдатская улица, 37.703191, 55.765194
Свяжитесь со мной на счет цены
10 дн.
T55S765194L37S703191T

На карте


Условия сделки

Источник


Старт продаж

Возможно заинтересует