Top.Mail.Ru

Доброслободская ул., д. 16, к. 2

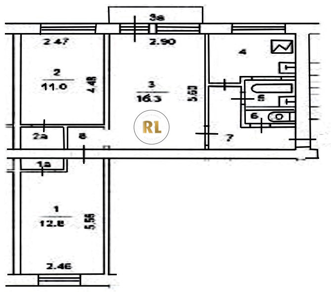
База каталог, Кол-во подъездов: 6, I-511, Москва, Басманный, Площадь парковки: 0, Пассажирский лифт: 0, От метро: 1110, Центральный, нет, Наименьшее кол-во этажей: 5, Наибольшее кол-во этажей: 5, Бауманская, Кол-во помещений: 119, Кол-во нежилых помещений: 0, Год ввода в эксплуатацию: 1962, 3-комн, Кол-во жилых помещений: 119, Не присвоен, дом 16, корпус 2, нет, да, да, да, да, нет, Имеется, Грузовых лифтов: 0, Год постройки: 1962, Доброслободская улица, 37.673564, 55.765397
Свяжитесь со мной на счет цены
10 дн.
T55S765397L37S673564T

На карте


Условия сделки

Источник


Старт продаж

Возможно заинтересует