Top.Mail.Ru

улица Молостовых, д. 2, к. 2

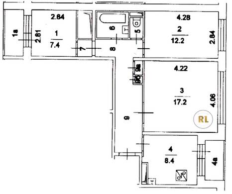
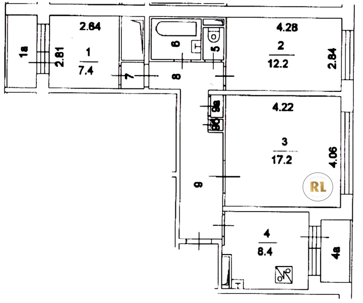
База каталог, Кол-во подъездов: 4, П-30, Москва, Ивановское, Площадь парковки: 0, Пассажирский лифт: 8, От метро: 1930, Восточный, нет, Наименьшее кол-во этажей: 12, Наибольшее кол-во этажей: 12, Новогиреево, Кол-во помещений: 0, Кол-во нежилых помещений: 0, Год ввода в эксплуатацию: 1975, 3-комн, Кол-во жилых помещений: 0, Не присвоен, дом 2, корпус 2, нет, да, да, да, нет, нет, Отсутствует, Грузовых лифтов: 0, Год постройки: 1975, улица Молостовых, 37.829862, 55.765655
Свяжитесь со мной на счет цены
10 дн.
T55S765655L37S829862T

На карте


Условия сделки

Источник


Старт продаж

Возможно заинтересует