Top.Mail.Ru

Осенняя ул., д. 22

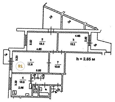
База каталог, Кол-во помещений: 409, Имеется, П-3/17, Москва, Крылатское, Площадь парковки: 1821, Пассажирский лифт: 6, От метро: 1080, Западный, да, Наименьшее кол-во этажей: 16, Наибольшее кол-во этажей: 17, Крылатское, Кол-во подъездов: 6, Год ввода в эксплуатацию: 1986, Кол-во нежилых помещений: 3, 3-комн, Кол-во жилых помещений: 406, дом 22, нет, да, да, да, да, да, Имеется, Грузовых лифтов: 6, Год постройки: 1986, Осенняя улица, 37.409145, 55.766597
25 000 000 Р
10 дн.
T55S766597L37S409145T
+

На карте


Условия сделки

Источник


Старт продаж

Возможно заинтересует