Top.Mail.Ru

улица Бориса Жигуленкова, д. 25, к. 4

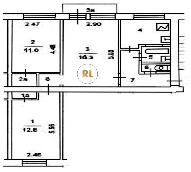
База каталог, Кол-во подъездов: 2, I-511, Москва, Соколиная Гора, Площадь парковки: 0, Пассажирский лифт: 0, От метро: 660, Восточный, нет, Наименьшее кол-во этажей: 5, Наибольшее кол-во этажей: 5, Соколиная Гора, Кол-во помещений: 43, Кол-во нежилых помещений: 3, Год ввода в эксплуатацию: 1959, 3-комн, Кол-во жилых помещений: 40, Не присвоен, дом 25, корпус 4, нет, да, да, да, да, да, Имеется, Грузовых лифтов: 0, Год постройки: 1959, улица Бориса Жигуленкова, 37.739276, 55.766658
Свяжитесь со мной на счет цены
10 дн.
T55S766658L37S739276T

На карте


Условия сделки

Источник


Старт продаж

Возможно заинтересует