Top.Mail.Ru

Солдатский переулок, д. 8

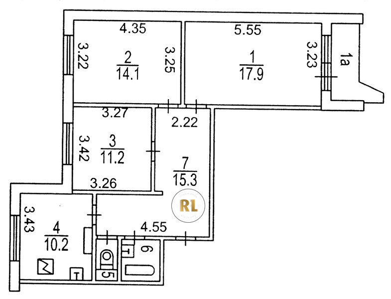
База каталог, Кол-во подъездов: 3, П-44, Москва, Лефортово, Площадь парковки: 0, Пассажирский лифт: 6, От метро: 340, Юго-Восточный, нет, Наименьшее кол-во этажей: 17, Наибольшее кол-во этажей: 17, Лефортово, Кол-во помещений: 204, Кол-во нежилых помещений: 0, Год ввода в эксплуатацию: 1990, 3-комн, Кол-во жилых помещений: 204, В, дом 8, да, да, да, да, да, да, Грузовых лифтов: 3, Год постройки: 1990, Солдатский переулок, 37.703856, 55.766668
Свяжитесь со мной на счет цены
10 дн.
T55S766668L37S703856T

На карте


Условия сделки

Источник


Старт продаж

Возможно заинтересует