Top.Mail.Ru

8-я ул. Соколиной Горы, д. 4

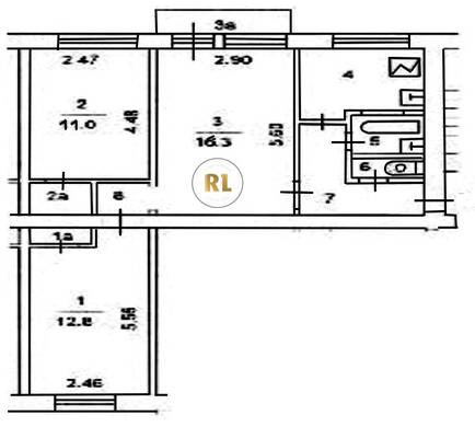
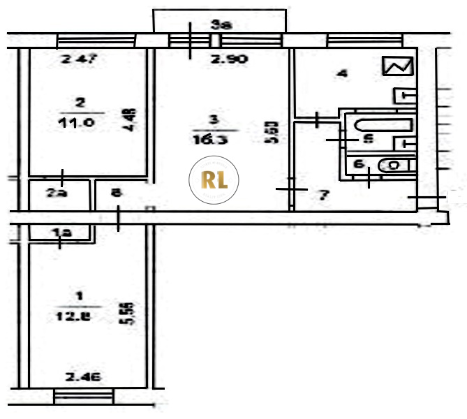
База каталог, Кол-во подъездов: 3, Имеется, I-511, Москва, Соколиная Гора, Площадь парковки: 0, Пассажирский лифт: 0, От метро: 900, Восточный, нет, Наименьшее кол-во этажей: 5, Наибольшее кол-во этажей: 5, Соколиная Гора, Кол-во помещений: 51, Кол-во нежилых помещений: 3, Год ввода в эксплуатацию: 1968, 3-комн, Кол-во жилых помещений: 48, Не присвоен, дом 4, нет, да, да, да, да, да, Имеется, Грузовых лифтов: 0, Год постройки: 1968, 8-я улица Соколиной Горы, 37.733707, 55.766916
Свяжитесь со мной на счет цены
10 дн.
T55S766916L37S733707T

На карте


Условия сделки

Источник


Старт продаж

Возможно заинтересует