Top.Mail.Ru

Осенняя ул., д. 26

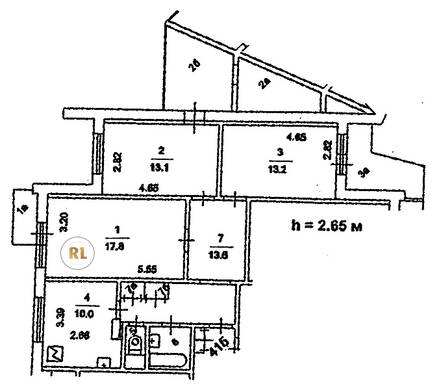
База каталог, Кол-во помещений: 0, П-3/17, Москва, Крылатское, Площадь парковки: 0, Пассажирский лифт: 6, От метро: 1140, Западный, нет, Наименьшее кол-во этажей: 0, Наибольшее кол-во этажей: 17, Крылатское, Кол-во подъездов: 6, Год ввода в эксплуатацию: 1986, Кол-во нежилых помещений: 0, 3-комн, Кол-во жилых помещений: 0, дом 26, нет, да, да, да, да, нет, Грузовых лифтов: 6, Год постройки: 1986, Осенняя улица, 37.408894, 55.767544
21 400 000 Р
10 дн.
T55S767544L37S408894T
+

На карте


Условия сделки

Источник


Старт продаж

Возможно заинтересует