Top.Mail.Ru

Крылатская ул., д. 31, к. 2

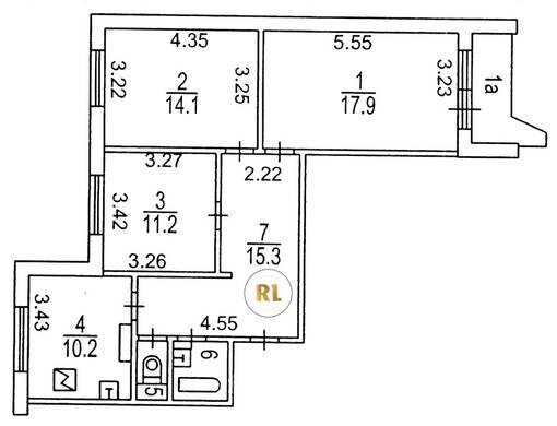
База каталог, Кол-во подъездов: 5, Имеется, П-44, Москва, Крылатское, Пассажирский лифт: 5, От метро: 1400, Западный, да, Наименьшее кол-во этажей: 17, Наибольшее кол-во этажей: 17, Крылатское, Кол-во помещений: 329, Кол-во нежилых помещений: 4, Год ввода в эксплуатацию: 1988, 3-комн, Кол-во жилых помещений: 325, Не присвоен, дом 31, корпус 2, нет, да, да, да, да, нет, Имеется, Грузовых лифтов: 5, Год постройки: 1986, Крылатская улица, 37.409055, 55.769980
Свяжитесь со мной на счет цены
10 дн.
T55S769980L37S409055T

На карте


Условия сделки

Источник


Старт продаж

Возможно заинтересует