Top.Mail.Ru

Ходынская ул., д. 8

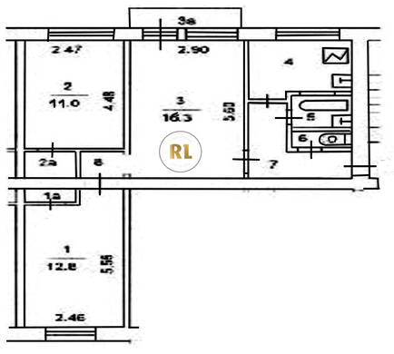
База каталог, Кол-во подъездов: 4, I-511, Москва, Пресненский, Площадь парковки: 0, Пассажирский лифт: 0, От метро: 750, Центральный, нет, Наименьшее кол-во этажей: 1, Наибольшее кол-во этажей: 5, Улица 1905 года, Кол-во помещений: 82, Кол-во нежилых помещений: 6, Год ввода в эксплуатацию: 1963, 3-комн, Кол-во жилых помещений: 76, Не присвоен, дом 8, нет, да, да, да, да, да, Имеется, Грузовых лифтов: 0, Год постройки: 1963, Ходынская улица, 37.561482, 55.770649
Свяжитесь со мной на счет цены
10 дн.
T55S770649L37S561482T

На карте


Условия сделки

Источник


Старт продаж

Возможно заинтересует