Top.Mail.Ru

Малая Почтовая ул., д. 5/12, стр. 2

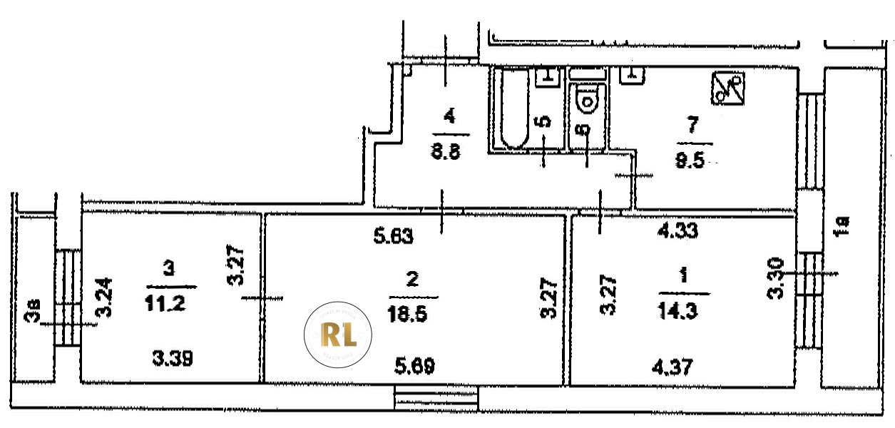
База каталог, Кол-во помещений: 93, И-209А, Москва, Басманный, Площадь парковки: 297, Пассажирский лифт: 2, От метро: 510, Центральный, да, Наименьшее кол-во этажей: 1, Наибольшее кол-во этажей: 14, Бауманская, Кол-во подъездов: 1, Год ввода в эксплуатацию: 1976, Кол-во нежилых помещений: 2, 3-комн, Кол-во жилых помещений: 91, дом 5/12, строение 2, да, да, да, да, да, да, Грузовых лифтов: 0, Год постройки: 1976, Малая Почтовая улица, 37.685377, 55.771185
Свяжитесь со мной на счет цены
10 дн.
T55S771185L37S685377T

На карте


Условия сделки

Источник


Старт продаж

Возможно заинтересует