Top.Mail.Ru

Рубцов переулок, д. 16, стр. 1

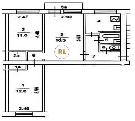
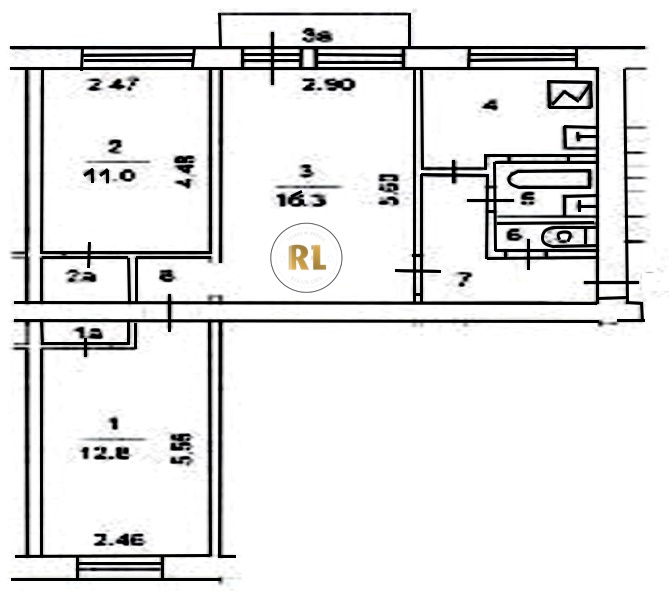
База каталог, Кол-во подъездов: 2, Отсутствует, I-511, Москва, Басманный, Площадь парковки: 0, Пассажирский лифт: 0, От метро: 1120, Центральный, нет, Наименьшее кол-во этажей: 1, Наибольшее кол-во этажей: 5, Бауманская, Кол-во помещений: 32, Кол-во нежилых помещений: 0, Год ввода в эксплуатацию: 1961, 3-комн, Кол-во жилых помещений: 32, Не присвоен, дом 16, строение 1, нет, да, да, да, да, нет, Отсутствует, Грузовых лифтов: 0, Год постройки: 1961, Рубцов переулок, 37.692573, 55.772583
Свяжитесь со мной на счет цены
10 дн.
T55S772583L37S692573T

На карте


Условия сделки

Источник


Старт продаж

Возможно заинтересует