Top.Mail.Ru

Рубцовская набережная, д. 2, к. 4

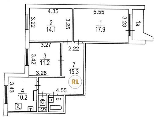
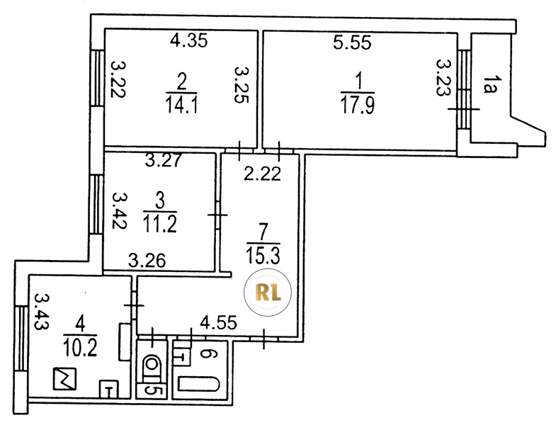
База каталог, Кол-во подъездов: 3, П-44, Москва, Басманный, Площадь парковки: 0, Пассажирский лифт: 3, От метро: 1220, Центральный, нет, Наименьшее кол-во этажей: 10, Наибольшее кол-во этажей: 10, Бауманская, Кол-во помещений: 65, Кол-во нежилых помещений: 0, Год ввода в эксплуатацию: 1999, 3-комн, Кол-во жилых помещений: 65, Не присвоен, дом 2, корпус 4, нет, да, да, да, да, нет, Имеется, Грузовых лифтов: 3, Год постройки: 1999, Рубцовская набережная, 37.694567, 55.773105
Свяжитесь со мной на счет цены
10 дн.
T55S773105L37S694567T

На карте


Условия сделки

Источник


Старт продаж

Возможно заинтересует