Top.Mail.Ru

Рубцовская набережная, д. 2, к. 3

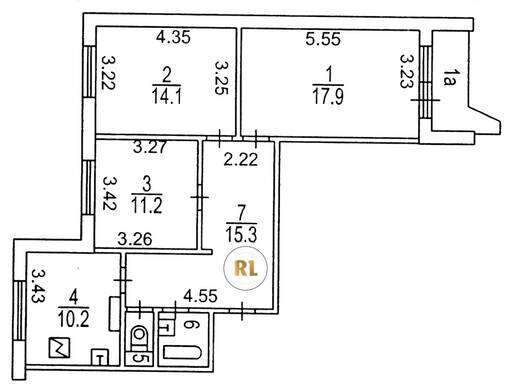
База каталог, Кол-во подъездов: 3, П-44, Москва, Басманный, Площадь парковки: 0, Пассажирский лифт: 3, От метро: 1220, Центральный, нет, Наименьшее кол-во этажей: 16, Наибольшее кол-во этажей: 16, Электрозаводская, Кол-во помещений: 147, Кол-во нежилых помещений: 0, Год ввода в эксплуатацию: 1999, 3-комн, Кол-во жилых помещений: 147, Не присвоен, дом 2, корпус 3, нет, да, да, да, да, нет, Имеется, Грузовых лифтов: 3, Год постройки: 1999, Рубцовская набережная, 37.694845, 55.773793
Свяжитесь со мной на счет цены
10 дн.
T55S773793L37S694845T

На карте


Условия сделки

Источник


Старт продаж

Возможно заинтересует