Top.Mail.Ru

улица Госпитальный Вал, д. 5, стр. 1

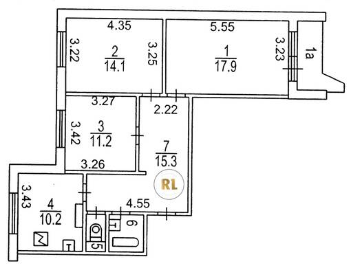
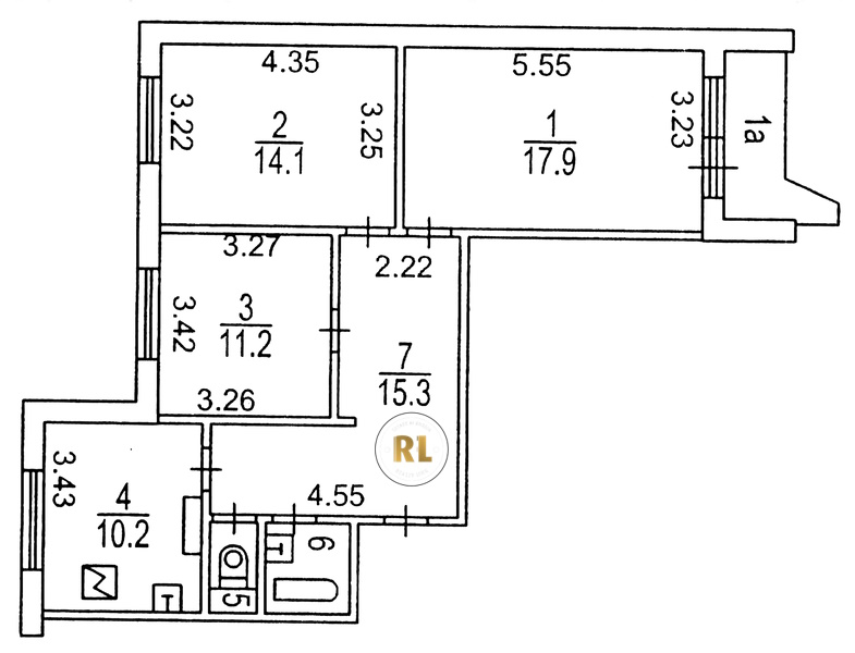
База каталог, Кол-во подъездов: 4, П-44, Москва, Басманный, Площадь парковки: 0, Пассажирский лифт: 4, От метро: 1060, Центральный, нет, Наименьшее кол-во этажей: 12, Наибольшее кол-во этажей: 14, Электрозаводская, Кол-во помещений: 203, Кол-во нежилых помещений: 3, Год ввода в эксплуатацию: 2000, 3-комн, Кол-во жилых помещений: 200, Не присвоен, дом 5, строение 1, нет, да, да, да, да, да, Отсутствует, Грузовых лифтов: 4, Год постройки: 2000, улица Госпитальный Вал, 37.710943, 55.774335
Свяжитесь со мной на счет цены
10 дн.
T55S774335L37S710943T

На карте


Условия сделки

Источник


Старт продаж

Возможно заинтересует