Top.Mail.Ru

1-й Кирпичный переулок, д. 26

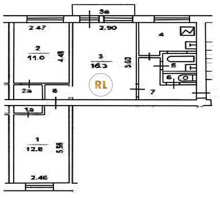
База каталог, Кол-во подъездов: 4, I-511, Москва, Соколиная Гора, Площадь парковки: 172, Пассажирский лифт: 0, От метро: 1290, Восточный, да, Наименьшее кол-во этажей: 5, Наибольшее кол-во этажей: 5, Соколиная Гора, Кол-во помещений: 81, Кол-во нежилых помещений: 1, Год ввода в эксплуатацию: 1959, 3-комн, Кол-во жилых помещений: 80, Не присвоен, дом 26, нет, да, да, да, да, нет, Имеется, Грузовых лифтов: 0, Год постройки: 1959, 1-й Кирпичный переулок, 37.733949, 55.774507
Свяжитесь со мной на счет цены
10 дн.
T55S774507L37S733949T

На карте


Условия сделки

Источник


Старт продаж

Возможно заинтересует